補助手摺り ソフトサポートホルダー(SSH)

設計・施工をスムーズに。
必要なデータを今すぐダウンロード!

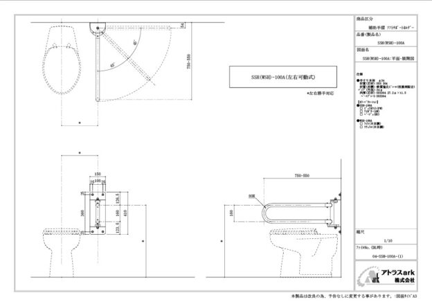
SSH-100A-(1) 横可動式手摺り

三面展開図

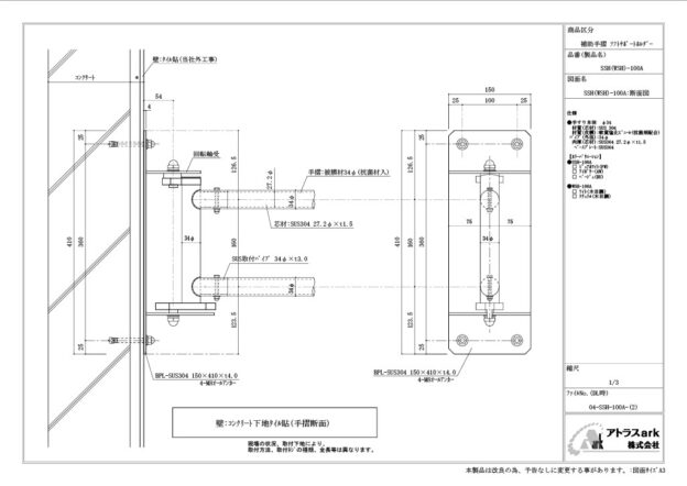
SSH-100A-(2) 横可動式手摺り 取付詳細(1)

断面図(コンクリート下地タイル貼)

SSH-100A-(3) 横可動式手摺り 取付詳細(2)

断面図(LGS下地PB*+*)

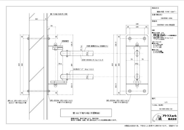
SSH-100A-(4) 横可動式手摺り 取付詳細(3)

断面図(ALC下地タイル貼)

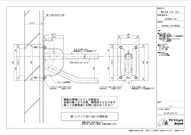
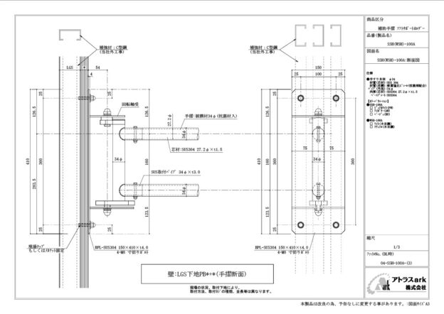
SSH-110A-(1) 縦可動式手摺り

三面展開図

SSH-110A-(2) 縦可動式手摺り 取付詳細(1)

断面図(コンクリート下地タイル貼)

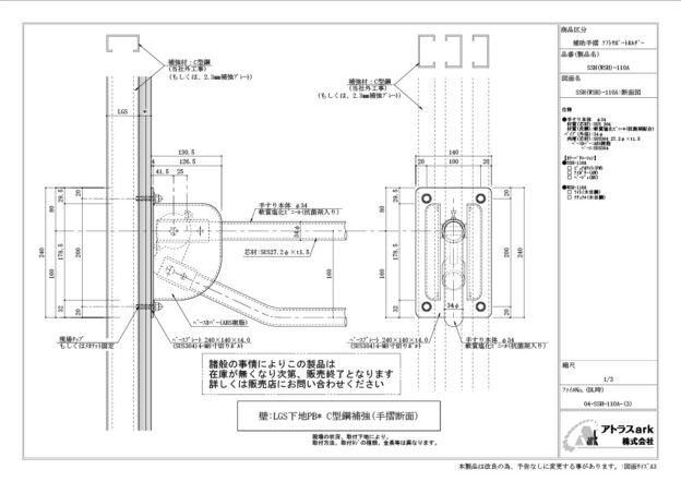
SSH-110A-(3) 縦可動式手摺り 取付詳細(2)

断面図(LGS下地PB* C型鋼補強)

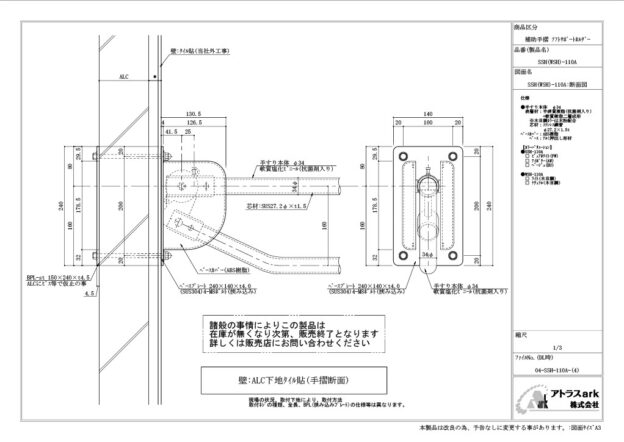
SSH-110A-(4) 縦可動式手摺り 取付詳細(3)

断面図(ALC下地タイル貼)

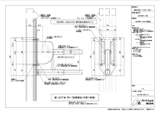
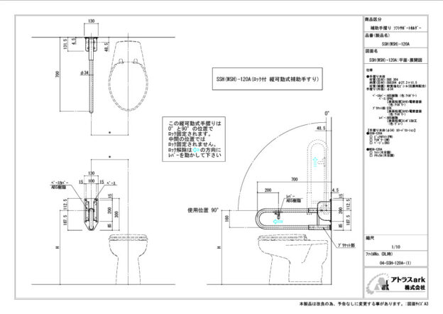
SSH-120A-(1) ロック付縦可動式手摺り

三面展開図

SSH-120A-(2) ロック付縦可動式手摺り 取付詳細(1)

断面図(コンクリート下地タイル貼)

SSH-120A-(3) ロック付縦可動式手摺り 取付詳細(2)

断面図(LGS下地 PB* C型鋼補強)

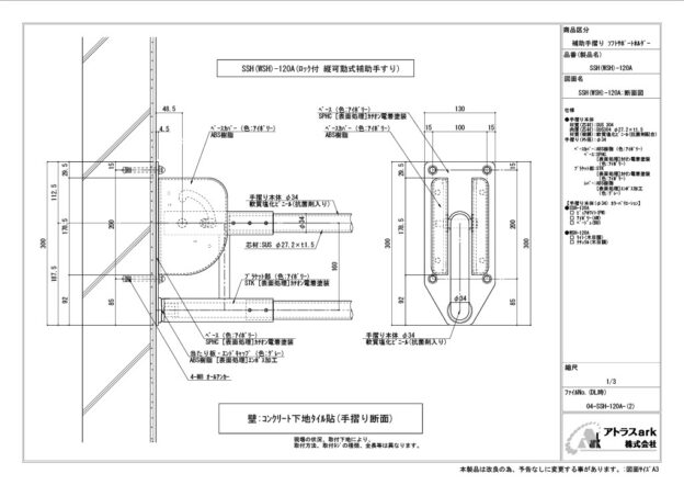
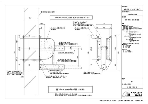
SSH-120A-(4) ロック付縦可動式手摺り 取付詳細(3)

断面図(ALC下地タイル貼)

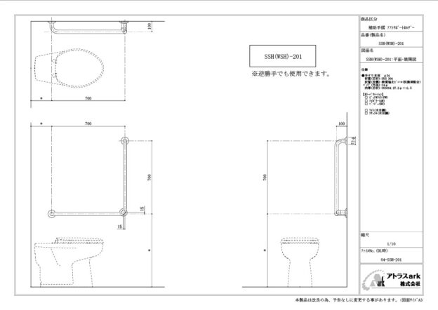
SSH-201 共通 L型補助手摺り

三面展開図

SSH-203 共通 L型補助手摺り

三面展開図

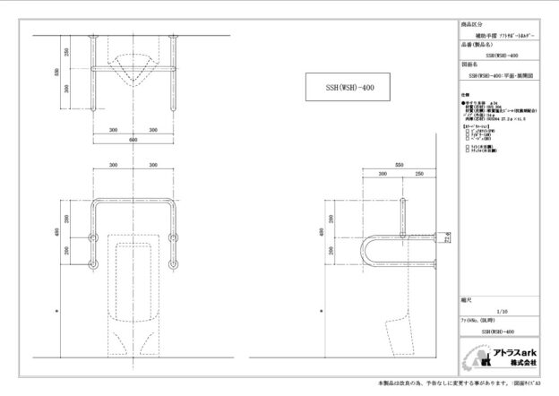
SSH-400 小便器用 補助手摺り

三面展開図

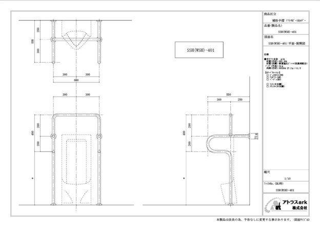
SSH-401 小便器用 補助手摺り

三面展開図

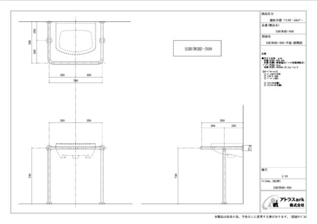
SSH-500 洗面器用 補助手摺り

三面展開図

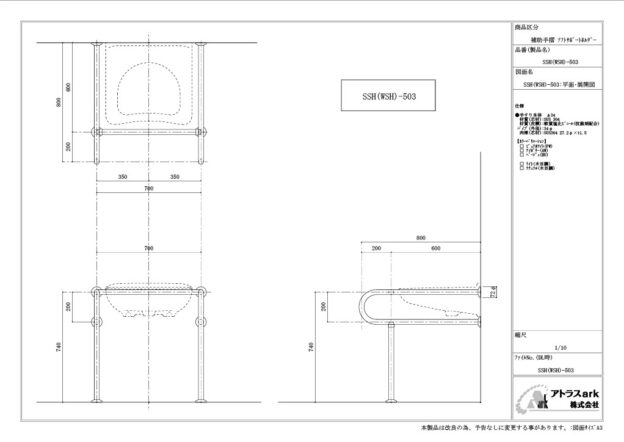
SSH-503 洗面器用 補助手摺り

三面展開図

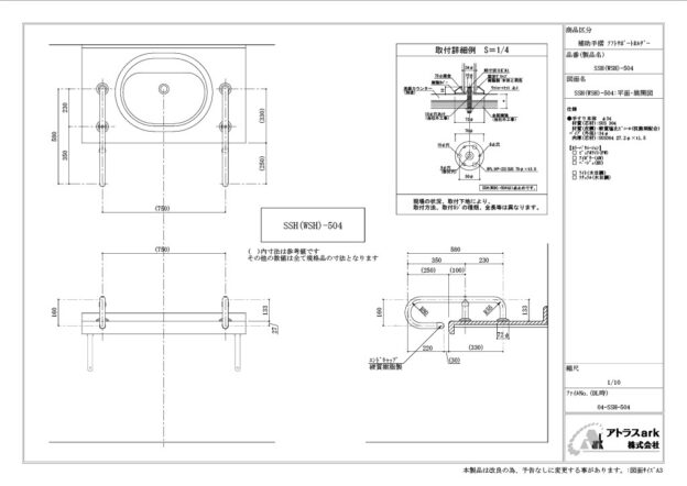
SSH-504 洗面カウンター用 補助手摺り

三面展開図

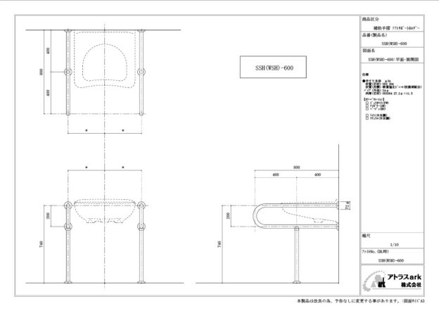
SSH-600 洗面器用 補助手摺り

三面展開図

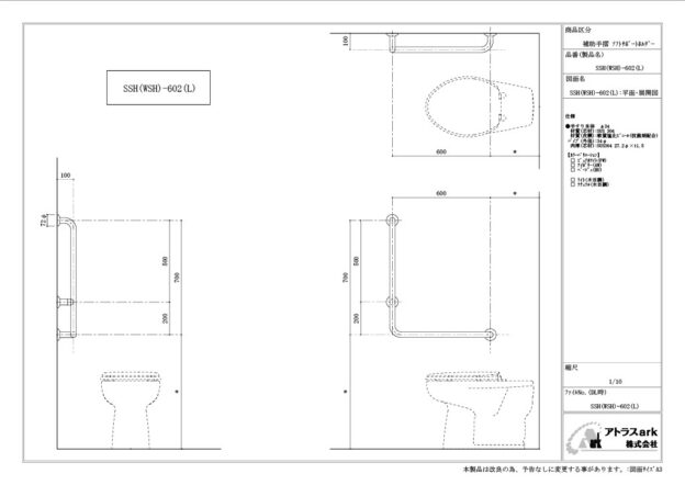
SSH-602L 共通 L型補助手摺り(L)

三面展開図

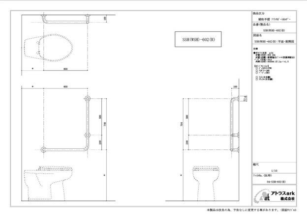
SSH-602R 共通 L型補助手摺り(R)

三面展開図

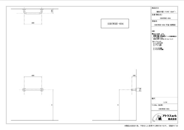
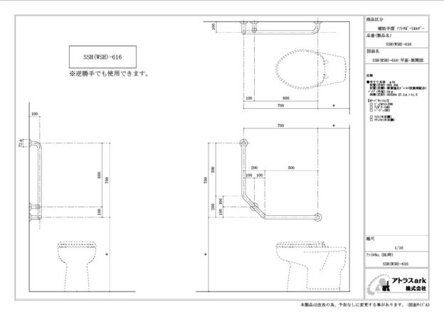
SSH-616 共通 補助手摺り

三面展開図

SSH-604 共通 I型補助手摺り

三面展開図

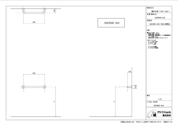
SSH-605 共通 I型補助手摺り

三面展開図

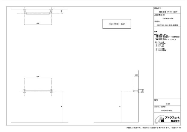
SSH-606 共通 I型補助手摺り

三面展開図

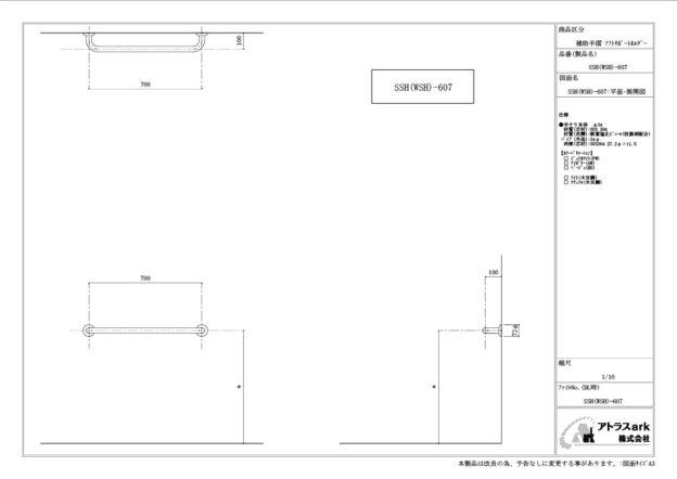
SSH-607 共通 I型補助手摺り

三面展開図

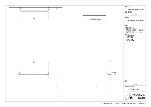
SSH-608 共通 I型補助手摺り

三面展開図

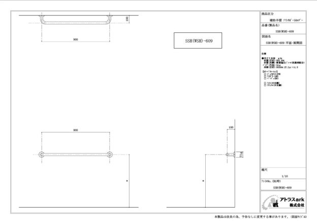
SSH-609 共通 I型補助手摺り

三面展開図

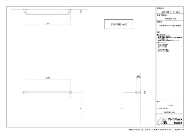
SSH-610 共通 I型補助手摺り

三面展開図

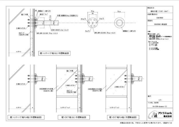
SSH-danmen-1 SSH-100~600シリーズ 取付詳細(1)

各種断面図

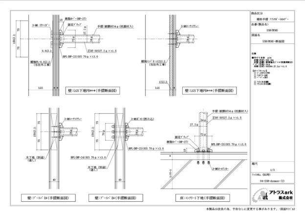
SSH-danmen-2 SSH-100~600シリーズ 取付詳細(2)

各種断面図