トップページ
製品案内
製品案内
手摺り・壁面ガード
トイレ手摺り・介護補助手摺り
衝撃吸収材・壁保護材・コーナーガード
階段すべり止め(ノンスリップ)
歩行用誘導鋲点字鋲(GOSTOP)
避難・誘導
グレーチング溝蓋・玄関マット
抗菌・抗ウイルス〔アークリアル技術〕
BEP(ステンレス表面)仕上げ
当社の強み
納入実績
会社紹介
会社紹介
会社紹介
会社概要
営業所
沿革
お知らせ
採用情報
製品名・キーワードから探す
お問い合わせ
商品検索
CADデータ
カタログ一覧
設計事務所の方はこちら
カタログ
CAD
アクアシリーズ iQ手摺り
設計・施工をスムーズに。
必要なデータを今すぐダウンロード!
HOME
データ一覧(CAD・PDF)
アクアシリーズ iQ手摺り
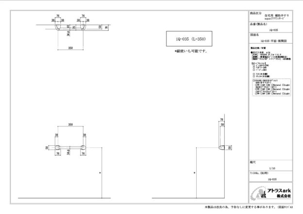
iQ-035
アクアシリーズ I型補助手摺り(L=350)
三面展開図
DXF
DWG
JWC
PDF
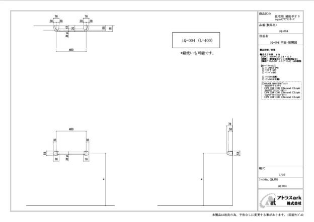
iQ-004
アクアシリーズ I型補助手摺り(L=400)
三面展開図
DXF
DWG
JWC
PDF
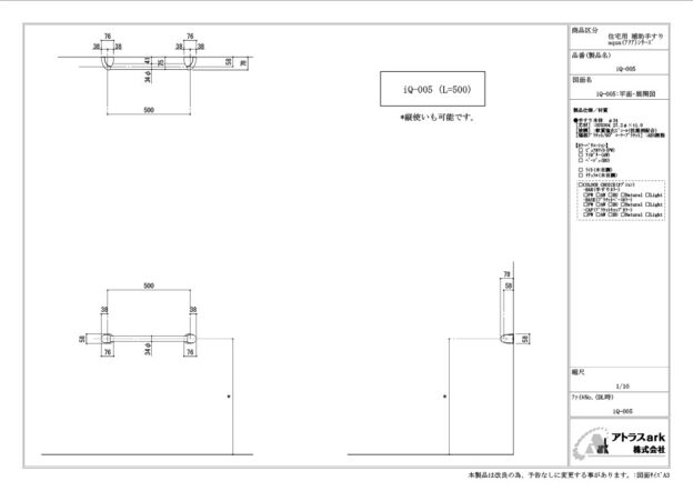
iQ-005
アクアシリーズ I型補助手摺り(L=500)
必要なファイル形式をクリックするとダウンロードが始まります。
DXF
DWG
JWC
PDF
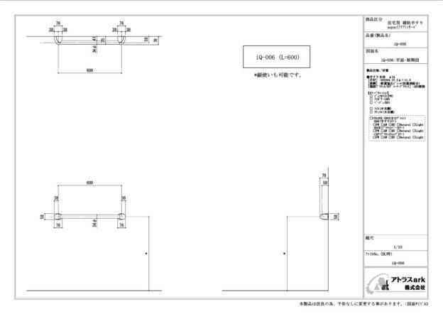
iQ-006
アクアシリーズ I型補助手摺り(L=600)
三面展開図
DXF
DWG
JWC
PDF
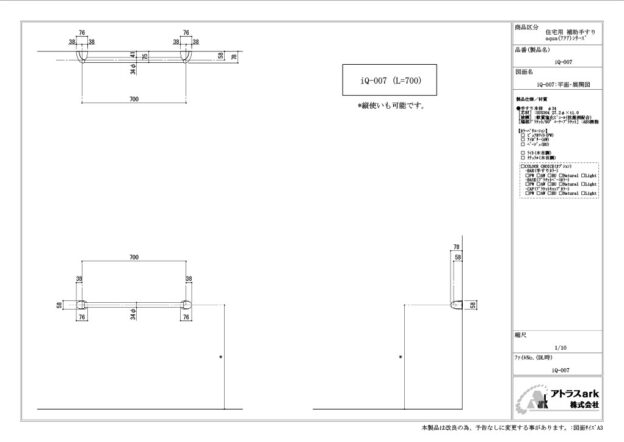
iQ-007
アクアシリーズ I型補助手摺り(L=700)
三面展開図
DXF
DWG
JWC
PDF
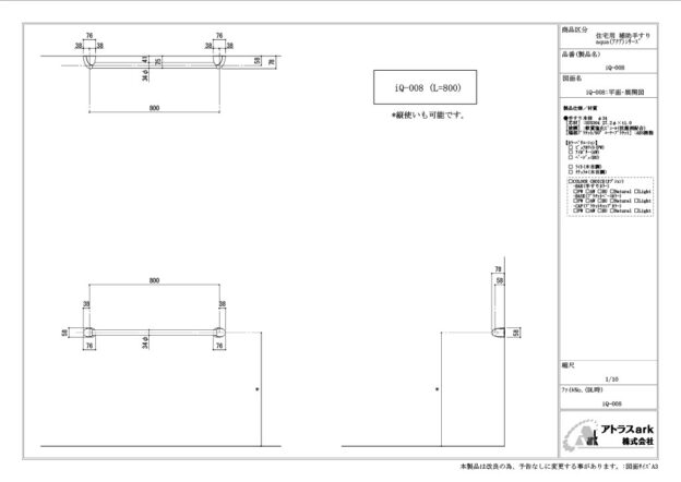
iQ-008
アクアシリーズ I型補助手摺り(L=800)
三面展開図
DXF
DWG
JWC
PDF
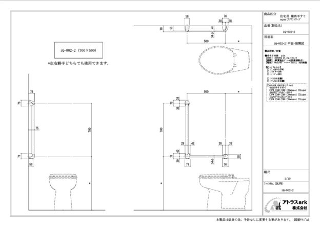
iQ-002-2
アクアシリーズ L型補助手摺り(700×500)
三面展開図
DXF
DWG
JWC
PDF
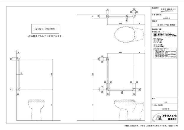
iQ-002-3
アクアシリーズ L型補助手摺り(700×600)
三面展開図
DXF
DWG
JWC
PDF
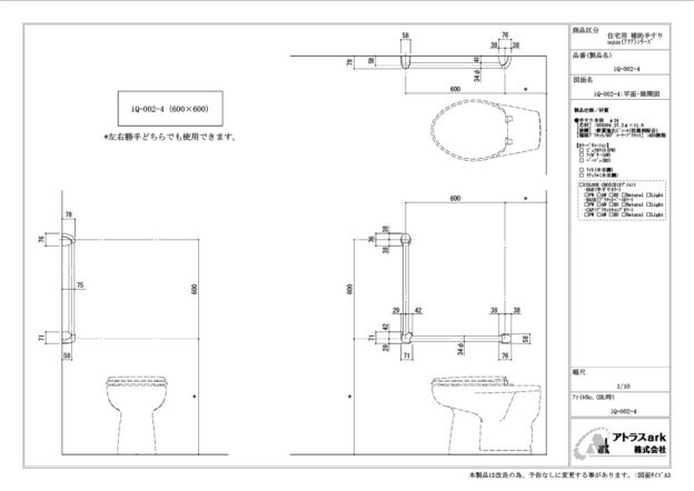
iQ-002-4
アクアシリーズ L型補助手摺り(600×600)
三面展開図
DXF
DWG
JWC
PDF
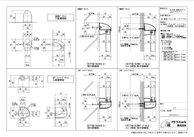
iQ-syosai_1
iQ 各種 取付断面詳細1
端部・コーナーブラケット 取付断面図
DXF
DWG
JWC
PDF
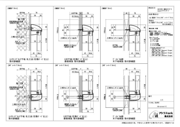
iQ-syosai_2
iQ 各種 取付断面詳細2
端部・コーナーブラケット 取付詳細図
DXF
DWG
JWC
PDF
カタログ一覧
CADデータ
×