トップページ
製品案内
製品案内
手摺り・壁面ガード
トイレ手摺り・介護補助手摺り
衝撃吸収材・壁保護材・コーナーガード
階段すべり止め(ノンスリップ)
歩行用誘導鋲点字鋲(GOSTOP)
避難・誘導
グレーチング溝蓋・玄関マット
抗菌・抗ウイルス〔アークリアル技術〕
BEP(ステンレス表面)仕上げ
当社の強み
納入実績
会社紹介
会社紹介
会社紹介
会社概要
営業所
沿革
お知らせ
採用情報
製品名・キーワードから探す
お問い合わせ
商品検索
CADデータ
カタログ一覧
設計事務所の方はこちら
カタログ
CAD
補助手摺り ソフトサポートホルダー(SSH)住宅用
設計・施工をスムーズに。
必要なデータを今すぐダウンロード!
HOME
データ一覧(CAD・PDF)
補助手摺り ソフトサポートホルダー(SSH)住宅用
SSH-935
住宅用 I型補助手摺り(握りバー)(L=350)
三面展開図
DXF
DWG
JWC
PDF
SSH-904
住宅用 I型補助手摺り(握りバー)(L=400)
三面展開図
DXF
DWG
JWC
PDF
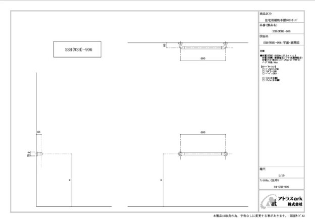
SSH-906
住宅用 I型補助手摺り(握りバー)(L=600)
三面展開図
DXF
DWG
JWC
PDF
SSH-908
住宅用 I型補助手摺り(握りバー)(L=800)
三面展開図
DXF
DWG
JWC
PDF
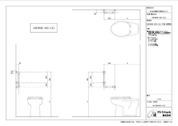
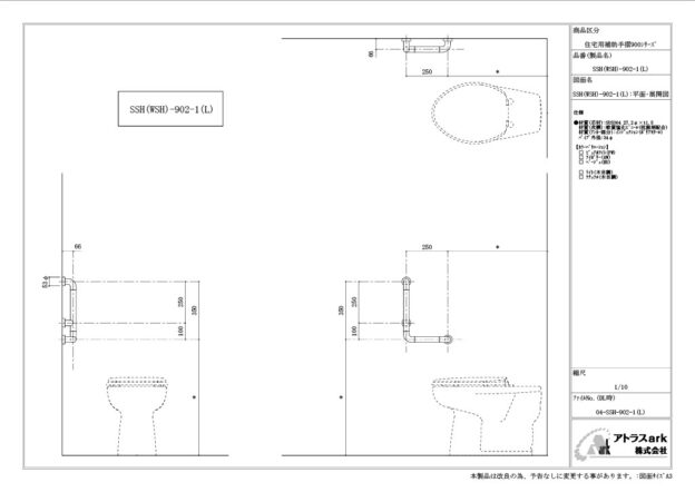
902-1(L)
住宅用 L型補助手摺り(L)
三面展開図
DXF
DWG
JWC
PDF
SSH-902-1(R)
住宅用 L型補助手摺り(R)
三面展開図
DXF
DWG
JWC
PDF
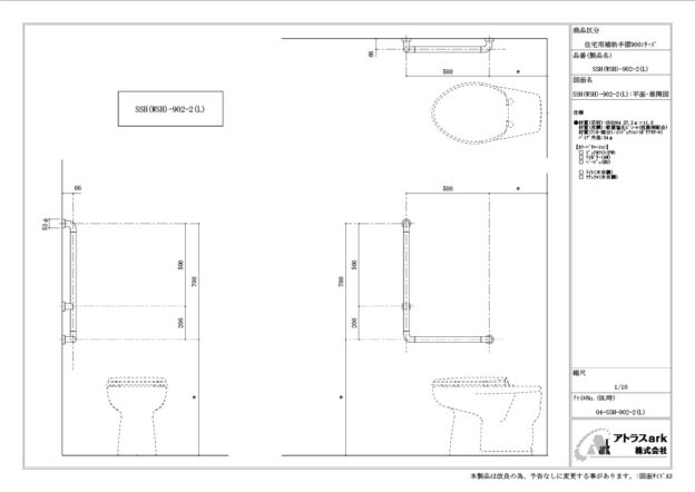
SSH-902-2(L)
住宅用 L型補助手摺り(L)
三面展開図
DXF
DWG
JWC
PDF
SSH-902-2(R)
住宅用 L型補助手摺り(R)
三面展開図
DXF
DWG
JWC
PDF
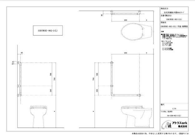
SSH-902-3(L)
住宅用 L型補助手摺り(L)
三面展開図
DXF
DWG
JWC
PDF
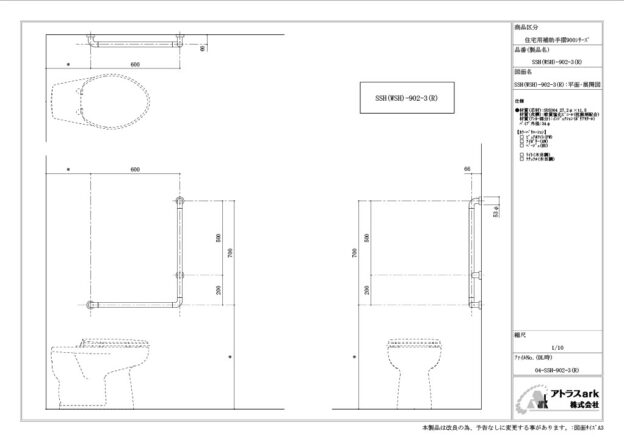
SSH-902-3(R)
住宅用 L型補助手摺り(R)
三面展開図
DXF
DWG
JWC
PDF
SSH-902-4(L)
住宅用 L型補助手摺り(L)
三面展開図
DXF
DWG
JWC
PDF
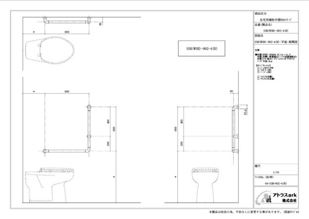
SSH-902-4(R)
住宅用 L型補助手摺り(R)
三面展開図
DXF
DWG
JWC
PDF
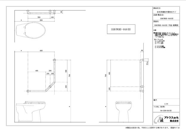
SSH-916(L)
住宅用 補助手摺り(L)
三面展開図
DXF
DWG
JWC
PDF
SSH-916(R)
住宅用 補助手摺り(R)
三面展開図
DXF
DWG
JWC
PDF
SSH-900-danmen
SSH-900シリーズ 取付詳細
取付断面図
DXF
DWG
JWC
PDF
カタログ一覧
CADデータ
×