樹脂タイヤ(はめ込み式)蓄光ノンスリップ

設計・施工をスムーズに。
必要なデータを今すぐダウンロード!

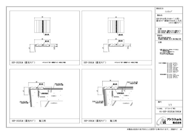
SEP-3525LM・356LM 樹脂タイヤ(はめ込み式)蓄光ノンスリップ ステンレス製タイプ(Pタイル用/タイルカーペット用)

平面図、断面図、取付施工例

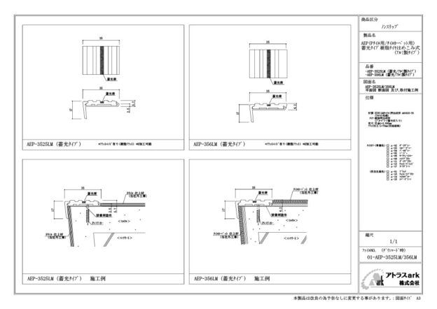
AEP-3525LM・356LM 樹脂タイヤ(はめ込み式)蓄光ノンスリップ アルミ製タイプ(Pタイル用/タイルカーペット用)

平面図、断面図、取付施工例

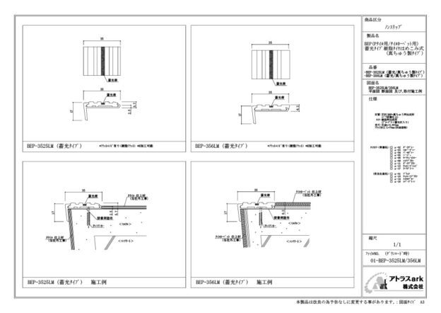
BEP-3525LM・356LM 樹脂タイヤ(はめ込み式)蓄光ノンスリップ 真ちゅう製タイプ(Pタイル用/タイルカーペット用)

平面図、断面図、取付施工例

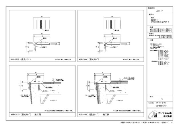
MSR-383P・386C 樹脂タイヤ(はめ込み式)蓄光ノンスリップ ステンレス芯金タイプ

平面図、断面図、取付施工例